DARIO SCHENK - ARCHITEKT FH CREATIVE DESIGN
  • Architektur
    • Ein Gewerbehaus für Schlieren
    • Eine Markthalle für Schlieren
    • Wohnen und Arbeiten in St.Gallen
    • Wohnen in Paris
    • Referenzpläne
    • Modellfotos
  • Gestaltung
    • Big_Wall
    • Stadtführer Winterthur
    • Fremdvertraut
    • le velo solitaire
    • Kurzgeschichte
    • Darth Vader
    • Random
  • Info/Kontakt

<

Picture
Aussenvisualisierung
Picture
Schwarzplan
Picture
Situationsplan
Picture
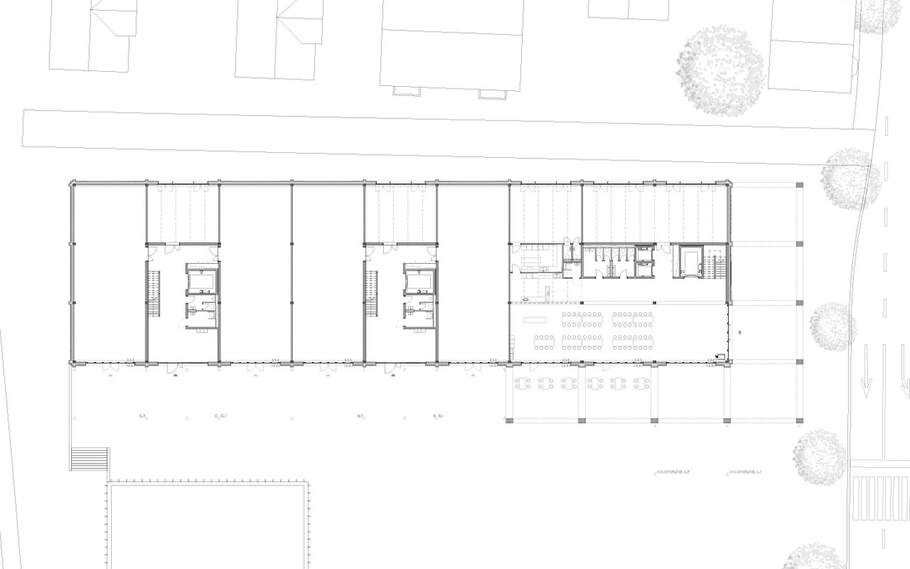
Grundriss Erdgeschoss
Picture
Grundriss Regelgeschoss
Picture
Querschnitt Kopfbau
Picture
Nordfassade
Picture
Ostfassade
Picture
Axonometrisches Konstruktionsdetail
Picture
Räumlicher Hauptschnitt
Picture
Innenvisualisierung Regelgeschoss
Picture
Innenvisualisierung Cafeteria
Ein Gewerbehaus für die Stadt

Städtebau
Das Gebäude ist Teil des U-förmigen Ensembles, welches windmühlenartig um einen Werkhof angeordnet ist. Es vermittelt durch das in zwei gegliederte Volumen zwischen dem Ensemble und der Nachbarssiedlung. Der markante Kopfbau wirkt in den städtischen Strassenraum, sowie zum Werkhof hin. Der Zeilenbau fasst den Platz und schafft den Massstabssprung zwischen Wohnquartier und Gewerbehaus. Das Ensemble wirkt über die Zürcherstrasse und dient als Auftakt für Schlieren und wird somit ein Erkennungsmerkmahl in dem bisher wenig definiertem Quartier.

Architektonische Idee
Als Grundidee des Gebäudes gilt ein Gewerbehaus mit vielseitigen Nutzungsmöglichkeiten. Robuste und dauerhafte Räume um zu arbeiten. Die Räume sind so konzipiert, dass sie sich an den Nutzer und seinen individuellen Bedürfnisse anpassen können, um eine langlebige und flexible Architektur zu ermöglichen. In dem Kopf- und dem Zeilenbau entsteht ein differenziertes Raumangebot. Im Kopfbau werden geschossweise grossflächige Räume angeboten, welche sich um einen Kern orientieren und verschieden unterteilbar sind. Im Zeilenbau werden kleinere Raumeinheiten angeboten, welche mittels Schalträume erweitert und verbunden werden können. Dabei wird zwischen dem überhohen Werkhallentypus mit eigener Anlieferung im Erdgeschoss, den sich darüber befindenden Normalgeschossen und den kleinen Schalträumen unterschieden.

Tragwerk und Konstruktion
Die vorfabrizierten Stützen und Unterzüge bilden die primäre Tragstruktur. Sie überspannen ein Raster von 8x6.5m. Die Deckenkonstruktion erfolgt mittels den überbetonierten TT-Platten, welche als sekundäre Elemente die Raumwirkung mitgestalten, sowie Einbauten wie Leuchten und Akustikpaneelen ermöglichen. Die in die Struktur miteingebundenen Sichtbeton-Kerne dienen zur Aussteifung, Erschliessung und zur Raumbildung. Die Aussenwände werden als u-förmige Ausfachung der Primärstruktur in Kalksandstein ausformuliert. Die selbsttragende Fassade wird aus vorfabrizierten Faserbetonelementen ausgebildet und an die Stützen rückverankert. Die Gesimse liegen auf den Pilaster auf und tragen die daraufgestellten Brüstungselemente und die seitlichen Verkleidungen. Die 6cm starken Elemente hüllen das Gebäude hautartig ein. Die Gesimse und Pilaster werden in ihrer Oberfläche differenziert behandelt, um so die Tektonik und das Innenleben nach aussen abzubilden.


Bachelorarbeit
Architekturstudium ZHAW
6.Semester

Dozenten:
Beat Rothen
Detlef Schulz
^
© 2020  Dario Schenk
  • Architektur
    • Ein Gewerbehaus für Schlieren
    • Eine Markthalle für Schlieren
    • Wohnen und Arbeiten in St.Gallen
    • Wohnen in Paris
    • Referenzpläne
    • Modellfotos
  • Gestaltung
    • Big_Wall
    • Stadtführer Winterthur
    • Fremdvertraut
    • le velo solitaire
    • Kurzgeschichte
    • Darth Vader
    • Random
  • Info/Kontakt